Regal Imobiliare utilizează fişiere de tip cookie pentru a personaliza și îmbunătăți experiența ta pe Website-ul nostru. Înainte de a continua navigarea pe Website-ul nostru te rugăm să aloci timpul necesar pentru a citi și înțelege conținutul Politicii de Cookie. Prin continuarea navigării pe Website-ul nostru confirmi acceptarea utilizării fişierelor de tip cookie conform Politicii de Cookie.
Acest anunt nu mai este activ !

Unirii-Birouri | 2 Camere | Decomandat | 3x Balcoane | 5 Min Metrou

Bucuresti, Unirii

500€
ID: P89172 6 inchiriat

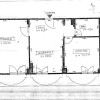
REGAL IMOBILIARE va propune spre inchiriere un SPATIU DE BIROURI, 3 CAMERE nemobilat si utilat in zona UNIRII-COPOSU proximitate metrou .

Apartamentul urmeaza sa fie renovat are o suprafata de 65 mp utili se afla la ETAJ 1 intr-un bloc cu regim de inaltime P+8.

Este ideal pentru o firma care este in cautarea unui apartament intr-o zona selecta a orasului.

Locuri de parcare se gasesc la liber in spatele blocului .

Va asteptam sa il vedem impreuna! La cerere putem oferi si un tur virtual .

Agent : VASILE DAN

  • Nr. camere:3
  • S. utila:62.00 mp
  • Comp.:Compartimentat
  • Clasificare:A
  • Etaj:Etaj 1
  • Nr. bai:1
  • An constructie:1990
  • Structura rezistenta:Beton
  • Tip imobil:Bloc
  • Regim inaltime:D+P+8
Utilitati
  • Utilitati generale: Curent, Apa, Canalizare, Gaz
  • Sistem incalzire: Termoficare, Calorifere
  • Climatizare: Aer conditionat
Finisaje
  • Pereti: Vopsea lavabila, Var
  • Podele: Parchet, Gresie
  • Ferestre: Ferestre PVC
Dotari
  • Contorizare: Apometre, Contor caldura, Contor gaz
  • Imobil: Interfon, Lift

Contacteaza-ma

0766238280